Gently infusing city life with nature is Vinia, a 25-storey mixed-use condominium offering versatile living spaces at the lifestyle belt of Quezon City. Its strategic location, just a few steps away from the North Avenue MRT Station along EDSA, links urbanites to the rest of the metropolis, particularly the booming north. Vinia integrates productivity and flexibility with its Versaflats or small-office home-office units perfect for professionals who want to work in the comfort of their homes. It also features pocket gardens, garden walls and a sky park to bring residents closer to nature.

Vinia Residences is located at EDSA, Brgy. Philam, Quezon City.
HLURB LS No. 28615 | Completion Date: 05/2017
Project Type

25-storeyMixed Use Condominium
Commercial units on ground floor (12 units/floor)
SoHo Units on 2nd to 8th floor
-2nd  to 5th  floor: 28 units/floor
-6th  to 8th  floor: 29 units/floor
Residential Units on 9th to 26th floor
9th - 22nd floor : 29 units/floor
23 - 26th floor: 27 units/floor
no 13th floor
Commercial Units - Ground Floor Layout
Retail space provision for business center, coffee shop,
water refilling, laundry shop, salon, day spa, convenience store, etc.
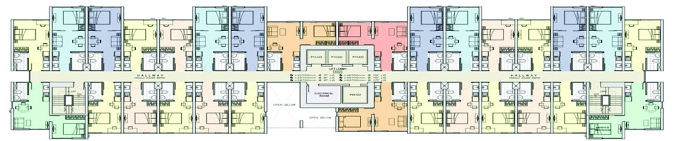
Residential Unit Floor Plan - 9th to 26th Floor
Have fun in your residential unit and enjoy a scenic view of the city framed by the greens of our sky gardens. Every unit is a perfect fit for your lifestyle and sets the bar high for urban living.
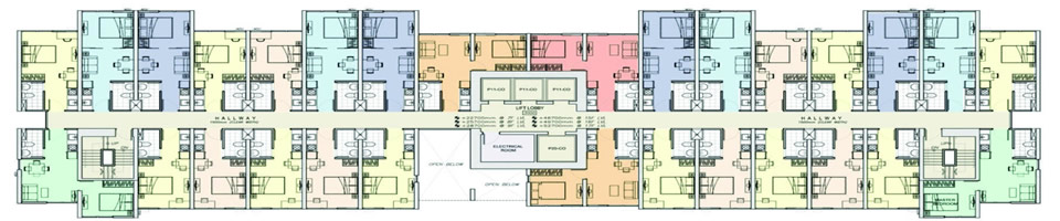
Versaflats (SOHO) Floor Plan - 2nd to 8th Floor
There is no space wasted in your Versaflat (Small Office / Home Office) as every square inch is as functional and productive as you. Guide your business to new heights and opportunities while enjoying the view of our sky gardens.
2-BEDROOM UNIT- 49 sqm
Amenities and Facilities 

Ground Floor:
Grand Reception Lobby and Lounge
Meeting Rooms
Open Veranda
Lobby Drop-off Area with Parking
Wifi Access
Green Wall Facade

Residential/SoHo Floors:
Green Common Area Balconies on selected floors

Roofdeck:
Sky Pavilion
Sky Terrace
Fitness Lounge
Landscaped Pocket Parks
Wifi-Access
Infinity and Wading Pools
Building Facilities and Utilities:

Three (3) passenger elevators and one (1) service elevator
24 x 7 security and CCTV system at selected access points
Provision for telephone, broadband internet and cable TV
Standby emergency power supply
Fire alarm and smoke detection system
Water reservoir and fire reserves
Sewerage treatment facility
Central mail area
Security card access for residential floors
Intercom facility
Garbage depository
Property management office
Enjoy all the conveniences of living and working in a condo at an accessible location with the vibrance of nature at Vinia Residences + Versaflats.

Vinia is located at EDSA, Brgy. Philam, Quezon City.

Landmarks

• MRT North Avenue Station - 0.25 km
• LRT 1 Roosevelt Station - 1.3 km
• LRT 2 Cubao Station - 4.6 km
• Philippine Science High School - 1.7 km
• University of the Philippines - 5.2 km
• Ateneo de Manila University - 9.1 km
• Veterans Memorial Hospital - 1.5 km
• Philippine Heart Center - 3 km
• Trinoma - 0.60 km
• SM North EDSA - 0.75 km

About Filinvest Land Inc ?
Filinvest Land, Inc. (FLI) is one of the leading real estate developers in the Philippines. It is a subsidiary of Filinvest Development Corporation (FDC), which has more than 40 years of experience in real estate development. Founded by Mr. Andrew L. Gotianun, Sr., FDC is the holding company of the Gotianun Family. Originally engaged in the small-scale financing of second hand cars in 1955, the Gotianun Family’s business later expanded into consumer finance in partnerships with foreign institutions such as Chase Manhattan Bank, Westinghouse Electric Corporation and Ford Philippines. By the early 1980’s, the Gotianun Family’s Filinvest Credit Corporation had become one of the leading consumer finance companies in the Philippines in terms of assets, and the “Filinvest” name had become well-recognized in the Philippines. The Gotianun Family entered the real estate business in 1967 through the incorporation of Filinvest Realty Corporation, which engaged in the development of residential subdivisions. In 1984, the Gotianun Family consolidated their real estate interests in FDC after divesting their shares in two family-owned banks, Family Bank and Trust Company and the Insular Bank of Asia and America. By 1990, FDC expanded its product line to include the development and sale of low-cost and medium-cost housing units.

FLI was incorporated on November 24, 1989 as Citation Homes, Inc. and changed its name to FLI on July 12, 1993. It began commercial operations in August 1993 after FDC spun off its real estate operations and transferred all related assets and liabilities to FLI in exchange for shares in FLI. FLI was listed on the Philippine Stock Exchange (PSE) on October 25, 1993. FDC remains FLI’s largest shareholder, beneficially owning approximately 59% of FLI’s outstanding common shares and all of its outstanding preferred shares.


Leader in Affordable Housing Segment :

FLI’s business has historically focused on the development and sale of affordable and middle-market residential lots and housing units to lower and middle-income markets throughout the Philippines. It has developed over 2,400 hectares of land, and provided home sites for over 150,000 families, which makes it one of the largest home providers in the Philippines today. In recent years, FLI has expanded its residential business to include other income segments (high-end) and themed residential projects with a leisure component, such as farm estates and developments anchored by sports and resort clubs.

FLI has substantial experience in developing and introducing new formats to the residential real estate market. The Company intends to be at the forefront of market changes by continually innovating and introducing new project formats to anticipate and meet market demands. Recent innovations includes:

(a) Homes situated on small lots designed to be expanded vertically through the addition of a second storey without requiring the occupants to vacate the home while the second storey is being added.

(b) The “Entrepreneurial Village” or “Asenso Village” concept which is the result of a collaborative effort with the Government to allow entrepreneurs with small- and medium-size businesses to live and work in a residential development with access to Government agencies that assist small businesses.

FLI is also a pioneer in the development of very large master-planned township developments which provide a convenient mix of commercial, industrial and residential uses.
FLI currently has over 150 projects located in 48 cities and municipalities nationwide. The Company has an extensive network of sales offices, in-house sales agents and independent brokers located throughout the Philippines, as well as accredited brokers in countries and regions with large Overseas Filipino Workers (OFW) and expatriate Filipino populations (such as Japan, Italy, the United Kingdom and the Middle East). Approximately half of FLI’s real estate sales are directly or indirectly derived from Overseas Filipinos (OFs).


Extensive Landbank :

FLI has, over the years, accumulated an extensive, well-located, low-cost landbank. As of the end of 2016, FLI’s landbank stood at 2,390 hectares, bulk of which is located just outside Metro Manila in the nearby provinces of Rizal, Bulacan, Batangas, Cavite and Laguna, as well as in growth areas such as Cebu, Davao and General Santos City in South Cotabato province.


Investment Properties Provide Recurring Income Stream :

FLI currently has significant investments in rental properties for office and retail tenants. Among these investments are: (1) The Festival Supermall, in Filinvest City (FC) in Muntinlupa (southern Metro Manila), (2) A 60% stake in Filinvest Asia Corporation which owns half of PBCom Tower within the Makati Central Business District, and (3) A 60% stake in Cyberzone Properties, Inc., developer of office buildings in Northgate Cyberzone, a 10-hectare Business Process Outsourcing (BPO) office park with multinational tenants. Festival Supermall is the largest shopping center in Southern Metro Manila with a gross area of 200,000 square meters. It has over 600 retail stores and outlets, ten cinemas and two themed amusement centers. It also has exhibit, trade and music halls which are leased out to events like trade fairs. PBCom Tower is currently the tallest building in the Philippines with 52 floors. It is located at the corner of Ayala Avenue and Herrera Street in Makati City. Filinvest Asia Corporation owns 35,000 square meters of leasable office space in PBCom Tower, which is leased out to about 30 tenants which include multinational companies and BPO firms. Meanwhile, Northgate Cyberzone, the BPO campus within Filinvest Corporate City, currently has eighteen (18) office buildings. This makes FLI the leader in developing offices with infrastructure to support IT-related and BPO businesses in the growing southern Metro Manila area.


20% Stake in Developer of Central Business District in Southern Metro Manila :

FLI has a 20% stake in Filinvest Alabang, Inc. (FAI), the developer of the 244-hectare Filinvest City (FC). Since the start of its development in 1995, FCC has grown to become a major destination in southern Manila that services all segments of the population with a wide array of retail, office and residential developments. The corporate city is home to key anchors such as the Asian Hospital and a fast growing office base in the Northgate Cyberzone. The second busiest transport terminal in Metro Manila is in the immediate vicinity, making FCC a major gateway for commuters going into and out of Metro Manila from the south. The completion of the extension of the Skyway elevated road to Alabang will significantly enhance the value of FCC and further increase its attractiveness as the location of choice for offices and residential living in the South of Metro Manila.


Our Business :
RESIDENTIAL
LEISURE
OFFICES
RETAIL COMMERCIAL
TOWNSCAPES


MISSION :

The primary responsibility of Filinvest Land is to the people that inhabit the cities, communities, and homes it has created. Filinvest will continually contribute to the economic development of society and will function as a good corporate citizen.


OBJECTIVES :

Filinvest shall provide its customers with universally competitive products that are valued not only for quality but in terms of affordability for all income levels. Only through research and development, innovation, and the use of appropriate technology can high quality services be provided.

Affordable housing shall always be a high priority in company endeavors. Coupled with safeguarding and maximum utilization of company assets, this long-term view (one of holding permanent the strategic health of Filinvest) should lead to better and sounder returns for stockholders.

The continuous pursuit of this mission can only result in industry leadership.


SHARED VALUES :

In the delivery of service to these people, high quality will be the one and only standard. A singularity of interest exists between the company and its employees, providing good working conditions, compensation based on performance, opportunity for growth and employment security are musts.

Innovation, professionalism, and teamwork are highly valued. The highest standards of business and moral ethics shall be exercised.

The long-term strategic health of Filinvest will always be paramount over short-term financial gains.
Step 1: Know your needs
-The first thing you need to consider when buying a Property is why you need to buy one.  Assess your needs and analyze the reasons for buying a Real Estate Property.  Is the property you’re going to purchase a family home, a half way home during weekdays, a retirement home, a place near work or school, or simply as an investment?  Knowing your needs will help narrow down your options to a select few developments and focus your search for the perfect property.

Step 2: Find the Property Location that best suits you
Step 3:
  Review well the Floor Plan and Unit lay-out of the Project you prefer

Step 4:  Make sure to check with your Real Estate Agent the availability of the Unit you want to Purchase and time when you plan to move in on your Unit of choice (e.g. Ready for Occupancy or Pre-Selling)

Step 5: Check and discuss with your Real Estate Specialist the available Payment Terms and Financing Schemes that suits your Budget
-Buying a Real Estate Property is one of the biggest necessary purchases anyone can make in his/her lifetime.  It is important that you make series of informed and intelligent discussions so you can arrive in a decision not hastily done.  One vital piece of information you need involves financing options and payment terms.

Step 6:  Document requirements in owning your new home
-Your Real Estate Agent will guide you through the processing of the necessary documents to fill up.  For your guidance, the following will be discussed:
Amount of Reservation Fee (Check, Cash, Swipe and remittance center)
Buyer’s Information Sheet and Request for Reservation and Offer to Purchase (RROP), Payment Mode of Confirmation, Proof of Billing, 2 Government Issued Id’s, Post Dated Checks (number of pieces dependent on Terms of Payment chosen)
What are the required documents for me to avail a condo?
*Photo Copy of Valid ID (Company ID, TIN ID, SSS ID, Driver's License, PRC.etc.)
*Photo Copy of Passport (if OFW or Foreigner)
*Pay Reservation Fee
What is my first step to avail a condo unit?
First, you have to choose your preferred unit.
Choose your unit size, and what floor, which tower, depending on the availability.

Step 1 : Choose your PREFERRED UNIT : Contact the Real Estate Specialist (Website Onwer) your real estate especialist to check if the unit that you wanted is available.

Step 2 : Fill up the Buyers Information Sheet. Request for Reservation and Offer to Purchase Form.

Step 3 : Pay Your Reservation Fee and SUBMIT your documents to your Real Estate Specialist (website owner), Your Property Specialist will be happy to assist you on choosing you availability unit.
How do I pay the Reservation Fee?
You can choose in any of payment options:
Bank-to-bank wire transfer (with proof of wire transfer)
Cash or Direct Deposit to the Company Account

Tips In Buying Philippine Real Estate Properties ?
Buying real estate is more than just finding a place to call home. Investing in Philippine Real Estate Properties has become increasingly popular over the past years and has become a common investment vehicle. Find a property to call your home or invest for your future.

The first major advantage to investing in Philippine real estate is that you are purchasing an extremely expensive product. "It is the best option in protecting your hard earned money. Unlike stocks or bonds which may go down in value and are too risky, properties provide hard assets which you can use or sell or rent out. It’s a productive asset. It is the foundation of wealth, in which will generate cash flow once you invest the right way. The key factors for high returns is when you invest in a property with a good location, good quality of development and from a developer with proven track record of on time delivery and property management to ensure your property will gain high resale value and rental income upon turn over.”

Secondly, “The income you will benefit from buying a good property in the Philippines is called PROPERTY VALUE. When you invest on a project at pre selling stage (buying the property while under construction) you have the opportunity to own the property at introductory price, affordable payment terms and more units available to choose from. The value of the property increases as the delivery date draws near. Upon completion, your P3M investment today may escalate to P4M to P5M upon delivery of the project.

Another income you will benefit from real estate properties is called RENTAL INCOME . “Rental from properties is stable source of monthly income. As unit owner, your property generates income every month approximately 1% of your present property value.
Why Buy a Home on the Pre-Selling Stage ?
When you finally decide to Buy a Home, it is important to have your due diligence in check. You should know that real estate properties as they are more developed, becomes higher in price. A good strategy to keep in mind when buying a home is to look for pre-selling properties.

Buying pre-selling properties be it house and lot or condo during its pre-selling period has a set of advantages and disadvantages especially for first time buyers. During the pre-selling stage, properties are usually cheaper as developers tend to give a discount ranging from 7% to 10%. Keep in mind that as the property gets completed, the prices also tend to get higher.

For houses, the more phases of construction is built the price go higher. Same goes for condos where the price gets higher as more floors are completed or for low/mid rise projects, the more buildings are completed.

When buying a property pre-selling or not, keep in mind the location, Super market, Malls, Hospitals, leisure and Security. You may also want to do a background check on the reputation of the project developer.
Set the criteria for your desired property ?

Determine your purpose of buying.
Is it for your family? or your business? Is it for your retirement? Or are you into buy and sell investments?

Determine the property category.
Is it house and lot? a residential lot only? or a condominium unit?

Determine your desired location.
Is it in Manila? in Laguna or in Cavite? Should it be near your office? Or somewhere far from the city?

Determine your budget.
Set the price minimum and price maximum that you can afford. Say Php 2 million to 6 million.

Determine other specifications.
Do you need at least 1 to 3 bedrooms? do you want a 1 to 3-car garage? Is it two-storey? or Bungalow type?.



Many buyers confusing in acquiring or looking for a home to live. They do not know what to do first and do not know where the house are located. They do not know the developer’s office to inquire. So this is the functions for the agents is to guide them and assist them in finding a house just within their needs.
Simple basic steps on how to buy Condo / house and lot in Philippines ?
1st
Look for a property in the internet for faster and easy, no hassle, no need to go outside and find those houses. (You can browse the professional Online Sellers Interactive website and you can view there, The Project Details, Project Video, and Company Profile)

2nd
If you find the house which you think fit your needs, there you should see the advertisers contact information. Copy it and contact him/her by calling or by email for your inquiries or any other concern you need to know from the Interactive websites or Ads by the proffesional property specialist/manager.

3rd
Set an appointment to view the property, because some of the properties are on pre-selling meaning that property do not exist yet or it is currently under development/construction (or You can visit their House/Condo Model/Units). Mostly at pre-selling stage, prices of the condo/houses are very low where mostly condo/home buyers purchase condo/house at this stage.

4th
If the property meet your needs, then you should reserve the unit to hold it for you. That will be done in the developer’s office. The property specialist/manager will guide you to the office where the transaction should be made.

5th
After reserving the chosen unit, developer will issue you some documents as proof of reserving/purchasing the unit. The developer will do the processing of the necessary documents for you with the assistance of the property specialist/Account Manager.

Additional information, buying condo / house and lot in the developer is much easier way compare to private property buying. Developer will do everything like processing your documents. All you have to do is to supply the payments and required documents needed. Unlike in private property, you itself will do the processing and everything needed to transfer the property to you.

For more Real Estate House and Lot needs Email or Call Us now or Earn incentives by referring us a buyer...

Thank you for visiting my website...
©2018 IntlWebs Premium Design.
Powered By: International Website Solutions (
http://intlwebs.com). All Rights Reserved.
About Filinvest
Filinvest International
© IntlWebs
© IntlWebs
PAUL TOGLE
+639503736813
+639064666702
+639503736813
zaldy.togle@yahoo.com
© IntlWebs